신길12구역 사회복지복합시설
studio on.a
대단지 규모의 도시개발로 오랜 시간 동안 축적된 도시 풍경은 하루아침에 탈바꿈되었고, 휴먼스케일의 도로와 골목길은 흔적조차 없이 사라져 버렸다. 우리는 사회복합시설로 진입하는 경사로를 통해 잃어버린 골목풍경을 재조직하여, 도시 골목에서 마주치며 만나는 이웃 간의 관계회복과 골목에서 뛰놀며 자라나는 아이들의 성장을 관찰 하고자 한다.
연속되는 길의 생성
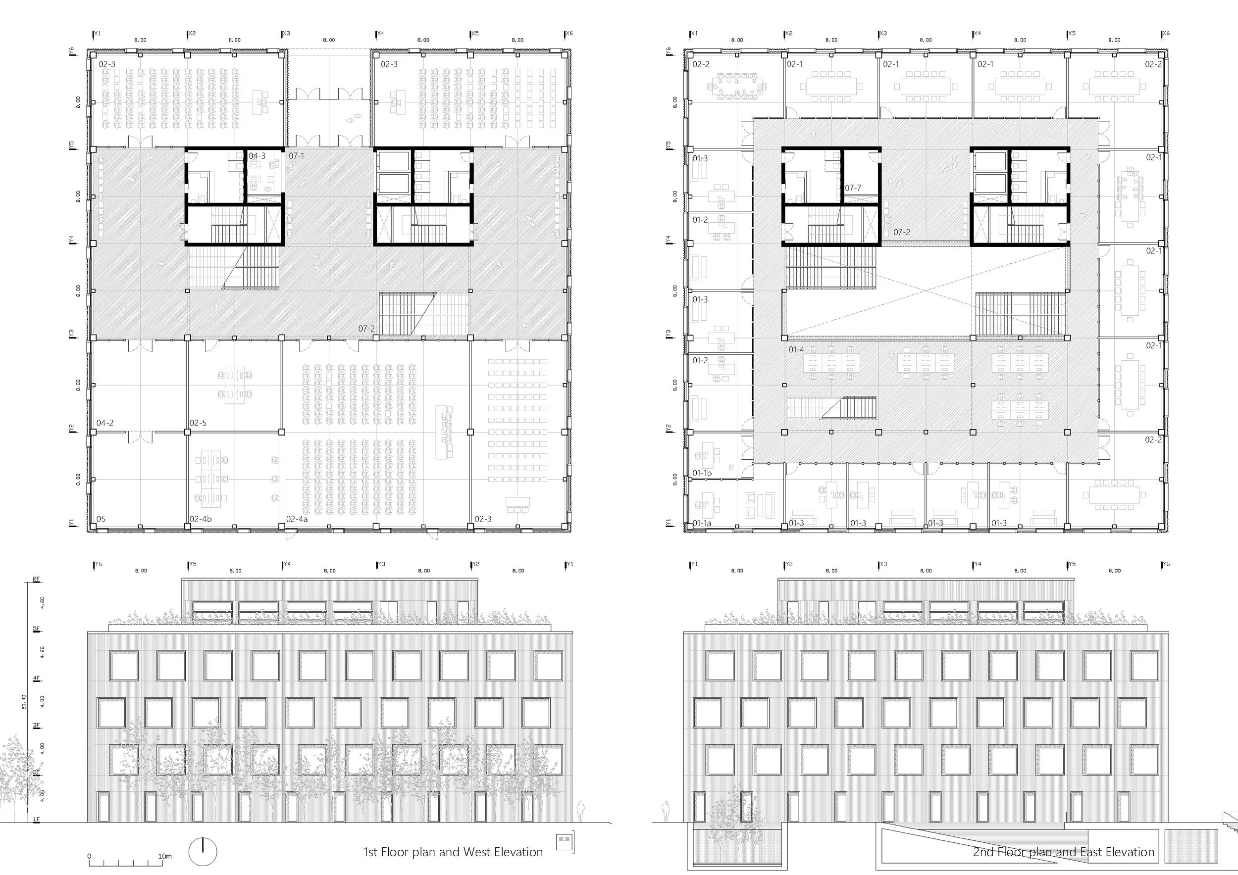
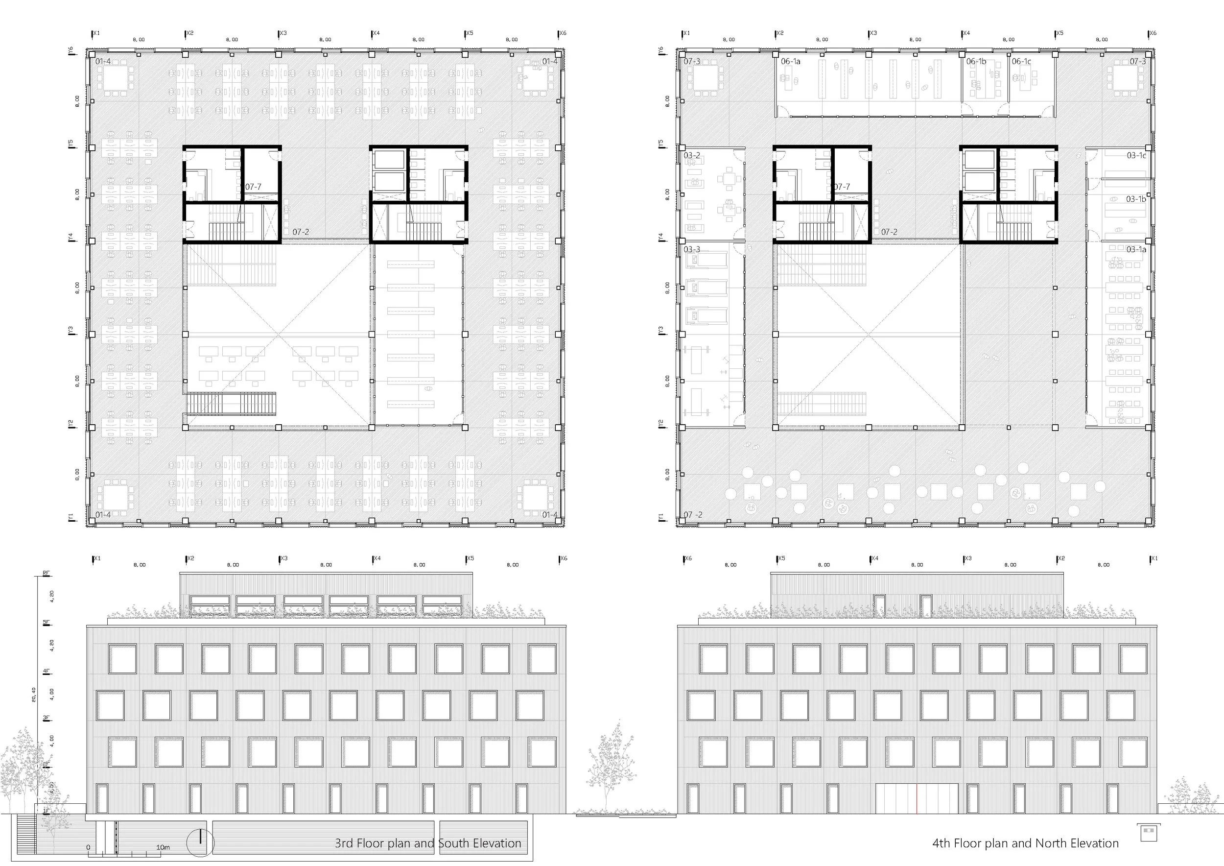
새로 조성된 아파트 보행길과 11m 도로와의 결절점에 건물의 출입구를 계획하고, 아파트 진입로에서부터 1~2층에 배치된 어린이집, 유치원, 아이랜드, 영유아 시설로의 연속된 길과 더불어 카페, 외부를 향해 열려있는 주차장 진입로를 통하여 공공건축물 안에서의 길과 공간이 교차하도록 계획하였다.
이는 주어진 조건에 따라 건물의 내부가 두 개의 영역으로 구분되고, 두 영역은 길을 통해 연결되거나 분리된다. 수직적으로 길쭉하게 계획된 창을 통하여 보행자의 행위는 연속적으로 관찰되어질 수 있으며, 이러한 과정을 통해 아이들은 서사적으로 구성된 시간의 연속성을 발견할 수 있게 된다.
또한 1/18, 1/12의 경사로로 계획된 길은 장애가 있는 사람의 ‘수단으로서의 장치’가 아니라 누구나 이용하는‘과정으로서의 길’이라는 의미로 받아들여지게 된다.
복합 공공시설(여성,교육,돌봄)의 역할
2020년 발표된 한국의 출산율은 0.84명으로 세계 최하위를 기록하고 있다. 사회구조적인 문제, 아이를 키우고 돌보는 것, 육아는 여성의 전유물로 비춰지는 사회분위기 속에서 출산율 제고를 위해서는 직장과 육아, 모두 병행 가능한 환경 마련 및 경력단절 여성에 대한 국가와 기업 차원에서 지원하는 시스템이 만들어져야 한다. 더 나아가서 바쁜 현대사회에서 점차 잊혀져가는 가족의 의미, 삶과 연결된 가족의 기능을 회복하는 것은 자기 존재의 회복이며, 심각한 저출산 문제를 해결하는 실마리이다.
신길12구역 사회복지 복합시설은 모두에게 공개된 공간이나 독립된 공간이 유기적으로 제시되어 형태적 프로그램과 결합되면서 시민의 능동적이고 적극적인 참여가 유도되어 도시와 사회는 상호 연결성이 강하게 밀착될 것이다.
유치원(어린이집)에 대한 기대
유치원은 부모와 독립하여 처음 사회생활을 경험하는 장소로서 만3~5세 유아들의 심신의 안전과 건강 그리고 조화로운 발달을 도와 민주 시민의 기초를 형성하는 것을 목적으로 하는 공간이다. 인간의 탄생에서 5~6세까지, 특히 3세까지의 환경은 자아형성에 결정적인 영향을 미친다. 유치원은 실로 그러한 시기의 어린이들을 위한 시설이다. 아침부터 저녁까지 어린이들에게는 자기 집 이상으로 생활의 터전이며 자기 집 이상의 가정인 것이다. 유치원에는 어린이들 생활의 모든 것이 있다.
처음으로 맞이하는 사회에서 친구를 만나고 상호간의 관계를 통해 사회성을 형성하며, 식사를 하고, 낮잠을 잔다. 어린이들에게는 주거 그 이상이 되는 것이다. 어른들이 사회로 나와 여러 사람들과 교류하고, 갖가지 일을 하며, 다양한 정보를 입수하는 것과 같이 어린이들은 유치원에서 갖가지 경험을 쌓아가며 성장한다. 그러므로 그곳에서 지내는 어린이들은 어른들보다 생활의 농도가 몇 배나 짙으며, 귀중한 시간의 밀도를 비롯, 건축물에서 받는 영향도 몇 배나 크다.
길로 연결된 수평적 공간의 경험
각각의 프로그램의 영역들이 주거라고 한다면, 진입경사로는 레벨을 극복하기 위한 장치가 아닌, 과정으로서의 길의 의미가 더해진 골목길이 된다. 내부 복도까지 연결되는 골목길은 도시의 도로가 되고, 홀은 광장이 되며, 식당, 도서관, 카페, 사무실등은 도시 조직이 되는 것이다. 각각의 사회복지 프로그램들은 도시의 거리와 같이 다양한 기회들로 넘쳐있다. 여러 어린이들과 함께하며, 서로 친구가 될 기회로 충만하다.
새로 조성되는 신길12구역 복합시설은 늦은 속도의 길(경사로)을 통해 사회를 경험하는 공간(아이랜드, 육아종합지원센터, 생활문화센터, 유치원, 어린이집등)이 연결된다. 사용자인 아이들과 엄마(경력단절여성)들이 풍부한 공간 안에서 다양한 경험의 기회를 가지며 사회 구성원으로 다시금 자연스레 스며 들 수 있도록 하는 것을 목적한다.
도시조직의 변화를 연결하는 골목
수백년에 걸쳐서 축척된 도시조직은, 개발 계획자의 손에 의해 단시간 내에 재조직 되었다. 고효율, 편리성, 브랜드화된 주거형식으로 군집화 되었고, 영역침범에 대한 불안감과 무리를 짓는 인간 본성에 의해 주거문화는 게이티드 커뮤니티로 변화되었다. 특히 수직 이동장치인 4~5m2 공간의 엘레베이터 안, 낯선 이웃과의 조우는 현관문을 빠르게 닫게 만드는 이유가 되기도 한다.
우리는 층간소음, 영역침범에 대한 두려움 등 조심스러운 아파트 생활을 벗어나서 골목길과 같은 수평 이동 장치를 통해 아이들에게 작은 사회를 간접적으로 경험 시키고자하며, 더불어 이웃간의 만남, 경험, 체험등의 소통이 이루어지도록 유도하려고 한다.